Vollholzhaus für vier Familien
Eine Scheune in Ottenhausen wird durch einen Neubau ersetzt. Das Gebäude steht im Ortsbildschutz, das heisst, dass für den Neubau die Gebäudeabmessungen und die Erscheinung (Materialisierung) übernommen werden muss. Der Bauherr lässt im eignen Wald Mondholz schlagen, um daraus ein Vollholzhaus für seine und drei weitere Familien zu bauen.


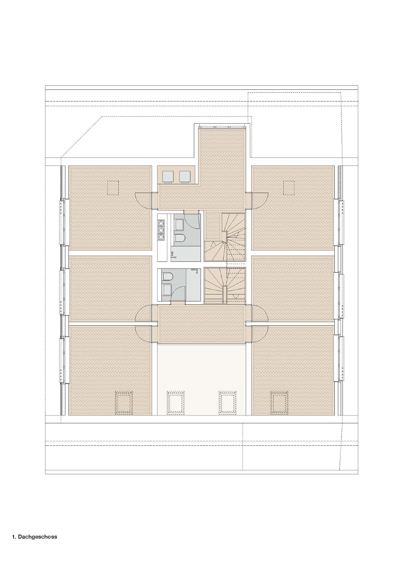
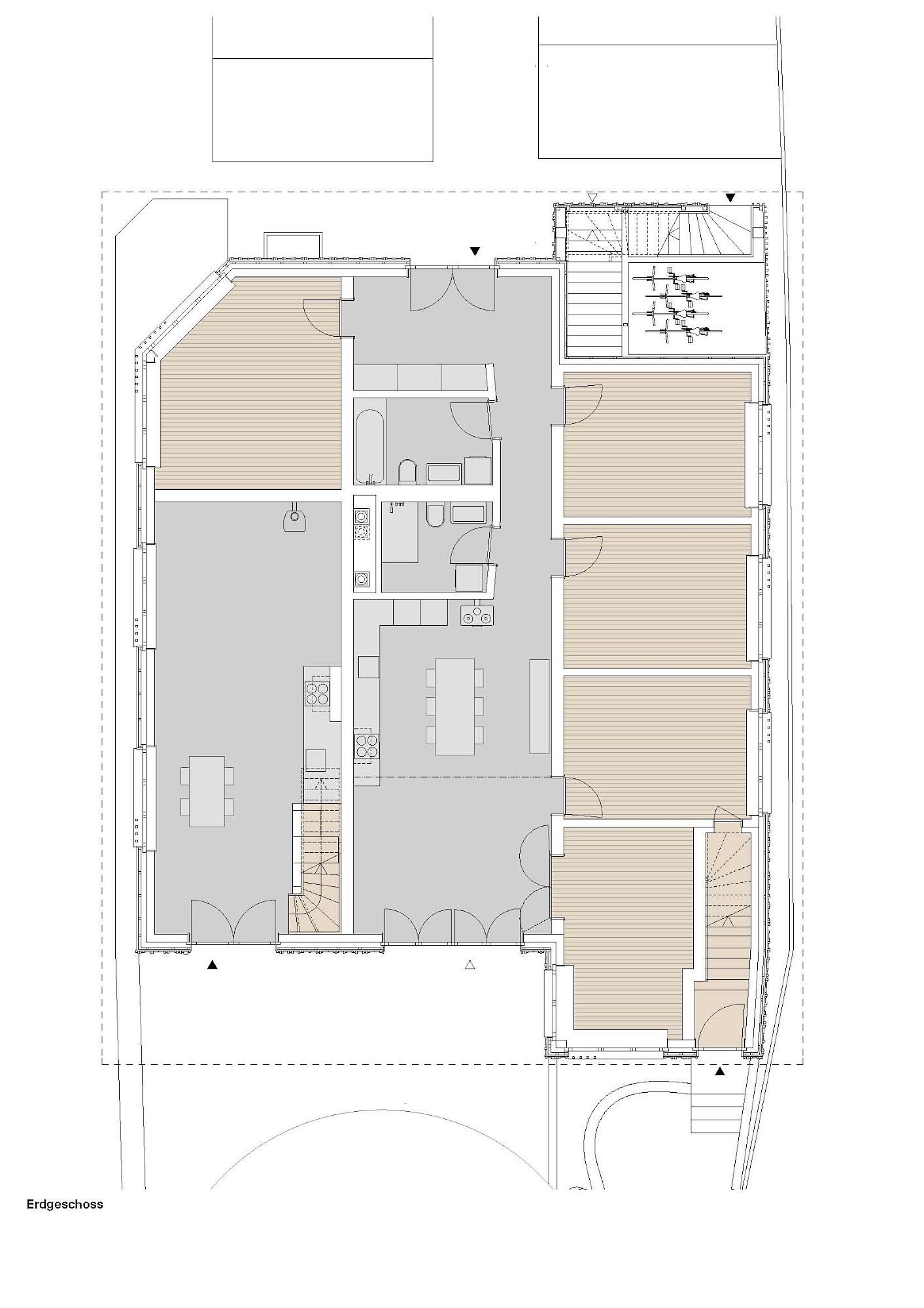
Entsprechend der Scheune verfügt das Haus über mehrere Zugänge. Jede Wohnung hat einen separaten Aussenzugang. Die Raumhöhen innerhalb der Wohnungen sind unterschiedlich. Auch dies ein Bezug zur Scheune, bei welcher die Geschosshöhen dem Zweck angepasst waren. So sind nun beim Neubau die Wohn- und Essräume höher als üblich.
Nachdem die Bretter gesägt und getrocknet sind, werden mehrere Brettlagen mit Holzdübeln zu Wandelementen verbunden. Danach werden die Elemente auf Mass geschnitten und die Öffnungen ausgeschnitten. Diese Elemente werden verladen und von der Produktionshalle auf die Baustelle geliefert. So kann das viergeschossige Haus innert rund zwei Wochen aufgerichtet werden.
Der Bauherrschaft, wie auch den Architekten, ist die Nachhaltigkeit und Baubiologie ein wichtiges Anliegen. Hier einige Themen, welche speziell berücksichtigt wurden: Materialwahl (langlebig, giftfrei, wenig graue Energie), Unternehmerwahl (aus der näheren Umgebung), Elektrobiologie sowie PV-Anlage auf dem Nebengebäude.





